PRODUCT CENTER
CONTACT US
If you are interested in cooperation, please contact us immediately, we will give you feedback as soon as possible!
- ]">
-
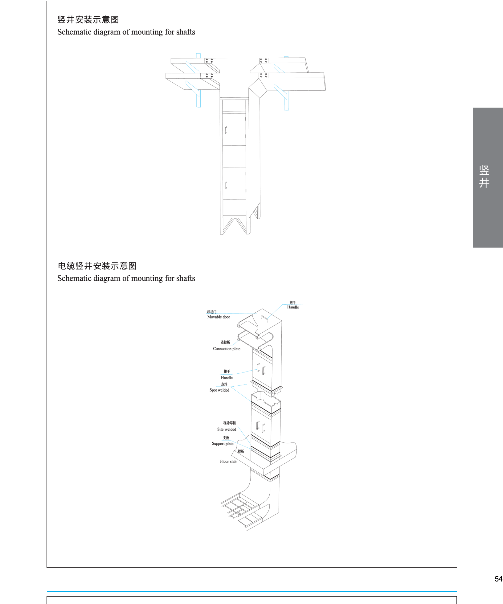
Shaft Cable Trays
Category :
hiddenValue
PRODUCT DETAILS






English
French
Icelandic
Georgian
Slovak
Slovenian
Latvian
Bosnian
Ukrainian
Serbian
Croatian
Belarusian
Romanian
Estonian
Hungarian
Czech
Catalan
Norwegian
Lithuanian
Albanian
Hindi
Italian
Finnish
Arabic
Danish
Bulgarian
Thai
Polish
Swedish
Greek
Portuguese
Dutch
Turkish
Russian
Deutsch
Korean
Japanese